Umlenktrommel Umlenktrommel

TROMMELN

Umlenktrommel für Förderbandanlagen

Neben den Tragrollen und Stationen sind die Umlenktrommeln ein weiterer wichtiger Bestandteil von Förderbandanlagen. Aus diesem Grund ist eine gute und fachgerechte Auslegung und qualifizierte Produktion sehr wichtig, um die Lebensdauer der Umlenktrommeln zu optimieren und den Ausfall eines dieser Elemente zu vermeiden. Wir rüsten Neuanlagen aus und liefern Ersatzbedarf.

Jetzt Anfragen

Produkt-Datenblatt

Produkt-Datenblatt - verstärkt

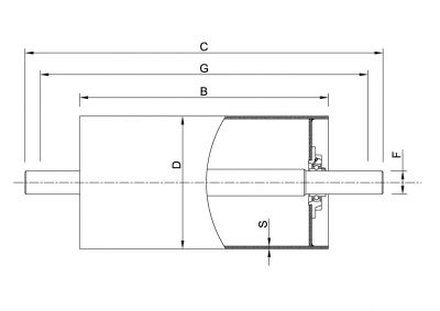
Technische Spezifikationen unserer Umlenktrommeln

TROMMELN

Innengelagerte Umlenktrommeln - individuelle Auslegung nach Anforderungen

Die Auslegung einer Umlenktrommel richtet sich stets nach den Einsatzbedingungen wie Fördermenge, Fördergeschwindigkeit, Gurtbreite etc. Unsere Empfehlung ist die Spannsatzverbindung, welche für die meisten Anwendungsgebiete geeignet ist. Gerne bieten wir Ihnen aber auch sehr individuell nach Ihren Vorgaben an. Senden Sie uns einfach Ihre Anfragen und/oder Zeichnungen.

Jetzt Anfragen

Produkt-Datenblatt

Produkt-Datenblatt - verstärkt

Trommeln mit Innenlagerung Trommeln mit Innenlagerung

Förderbandanlagen sind aus der Industrie nicht mehr wegzudenken. Ob im Bergbau, in der Landwirtschaft oder in der Logistik - sie kommen überall zum Einsatz, wo Materialien von einem Ort zum anderen transportiert werden müssen. Dabei spielen die Umlenktrommeln eine entscheidende Rolle.

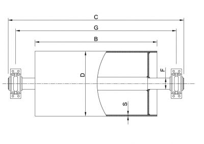
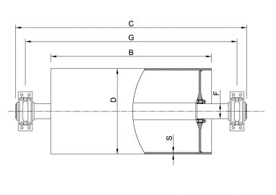
Die Umlenktrommel, auch als Wendetrommel, Umkehrtrommel oder Umlenkrolle bezeichnet, ist ein wichtiger Bestandteil jeder Förderanlage. Ihre Aufgabe besteht darin, das Förderband in eine andere Richtung zu lenken. Dabei wird das Material umgelenkt und weitertransportiert. Umlenktrommeln können entweder als außengelagerte oder als innengelagerte Ausführung ausgelegt werden. Bei der außengelagerten Variante befindet sich das Lager außerhalb der Trommel, bei der innengelagerten Variante hingegen im Inneren der Trommel.

Wir bieten Ihnen des Weiteren verschweißte Umlenktrommeln an. Treten Sie mit uns in Kontakt.

Jetzt Anfragen

Produkt-Datenblatt - verschweißt

Nutzen Sie für eine Anfrage einfach unsere Fragebögen. Ausfüllen, Abschicken, Fertig! Den Rest übernehmen wir für Sie.

zu den Fragebögen

WEITERE EINDRÜCKE

Unsere Qualität in Bildern

Umlenktrommeln, Spannsatz Umlenktrommeln, Spannsatz
Umlenktrommeln, Spannsatz
Umlenktrommeln, innengelagert Umlenktrommeln, innengelagert
Umlenktrommeln, innengelagert
Umlenktrommeln, verschweißt Umlenktrommeln, verschweißt
Umlenktrommeln, verschweißt
Umlenktrommeln Umlenktrommeln

Materialwahl und Wartung: Wichtige Faktoren bei der Umlenktrommel

Bei der Auswahl der richtigen Umlenktrommel sind auch die Materialien von großer Bedeutung. Hierbei stehen verschiedene Materialien wie Stahl, Edelstahl oder Beschichtungen wie Gummi oder Keramik zur Verfügung. Die Wahl des richtigen Materials richtet sich nach den Anforderungen der Anwendung, der chemischen Beständigkeit und den Umgebungsbedingungen.

Die Lebensdauer einer Umlenktrommel hängt auch von der richtigen Wartung und Instandhaltung ab. Regelmäßige Inspektionen und gegebenenfalls notwendige Reparaturen können dazu beitragen, die Lebensdauer zu verlängern. Im Falle eines Ausfalls sollten Ersatzteile schnell und unkompliziert verfügbar sein. Wir bieten unseren Kunden sowohl die Lieferung von Ersatzteilen als auch die komplette Ausrüstung von Neuanlagen an.

Eine weitere wichtige Rolle spielen die Tragrollen und Stationen in einer Förderbandanlage. Tragrollen und Stationen sind praktisch die Verbindung zwischen Antriebstrommel und Umlenktrollen. Auf Ihnen läuft der Fördergurt und das zu transportierende Material.

Ein wichtiger Faktor bei der Auswahl der richtigen Umlenktrommel ist die Fördergeschwindigkeit. Je höher die Geschwindigkeit, desto größer ist die Belastung auf die Trommel und desto wichtiger ist eine qualitativ hochwertige Konstruktion und Produktion. Auch die Gurtspannung und die Art der Transportgüter spielen eine Rolle bei der Wahl der Umlenktrommel. Gleiches gilt für unsere Antriebstrommeln.

Hochwertige und individuell gefertigte Umlenktrommeln für Förderanlagen

Bei der Konstruktion und Produktion setzen wir auf höchste Qualität und Präzision. Wir verwenden nur hochwertige Materialien und fertigen jede Umlenktrommel individuell nach den Anforderungen und Bedürfnissen unserer Kunden. Dabei berücksichtigen wir auch die Umweltbedingungen und mögliche chemische oder mechanische Einflüsse.

Wir bieten unseren Kunden auch die Möglichkeit, Umlenktrommeln nachzurüsten oder zu ersetzen, um die Effizienz und Lebensdauer ihrer Förderanlagen zu erhöhen. Dafür bieten wir ein umfangreiches Sortiment in verschiedenen Größen und Ausführungen an.

Unsere Umlenktrommeln sind auch in innengelagerter Ausführung erhältlich. Diese Art von Umlenktrommeln werden meist dort eingesetzt, wo direkt die Trommel zur Spannung des Fördergurtes dient. In diesem Fall befinden sich die Lager in der Trommel, um sie vor äußeren Einflüssen zu schützen und eine lange Lebensdauer zu gewährleisten.

Zusammenfassend lässt sich sagen, dass die Umlenktrommel ein wesentlicher Bestandteil einer Förderbandanlage ist. Eine gute Auslegung und Produktion sowie regelmäßige Wartung und Instandhaltung sind entscheidend für eine hohe Lebensdauer und Zuverlässigkeit der Anlage. Auch die Wahl der geeigneten Verbindungstechnik spielt eine wichtige Rolle, um eine zuverlässige und sichere Übertragung der Kräfte zu gewährleisten.

Häufig gestellte Fragen

Was ist eine Umlenktrommel?
Die Umlenktrommel, auch als Wendetrommel oder Umlenkrolle bekannt, ist ein wesentliches Element in Förderanlagen. Sie sorgt dafür, dass das Förderband umgelenkt wird und wieder zurückläuft. Schicken Sie uns einfach eine Anfrage und wir erledigen den Rest für Sie!
Wieso haben Umlenktrommeln so viele verschiedene Bezeichnungen?
Umlenktrommeln haben viele Bezeichnungen, wie z.B. Umkehrtrommeln, Wendetrommeln, Umlenkrolle, Drucktrommel, Spanntrommel oder einfach nur Förderbandtrommel. Unter den meisten Begriffen verstehen wir dieselben Anwendungen. Einige unserer Kunden bezeichnen sehr kleine Umlenktrommeln als Umlenkrollen, die Anwendung ist aber dieselbe. Anders sieht es hier bei den Begriffen Drucktrommel oder Spanntrommel aus. Auch wenn nahezu alle Trommeln gleich aussehen, so findet doch eine Drucktrommel Ihre Anwendung darin, den Gurt an einen andere Umlenktrommel zu drücken, bzw. bei einer Spanntrommel den Gurt zu spannen.
Wie hängt die Fördergeschwindigkeit mit der Wahl der Umlenktrommel zusammen?
Je höher die Fördergeschwindigkeit, desto größer ist die Belastung auf die Trommel und desto wichtiger ist eine qualitativ hochwertige Konstruktion und Produktion. Auch die Gurtspannung und die Art der Transportgüter spielen eine Rolle bei der Wahl der Umlenktrommel.
Wie trägt die richtige Wartung zur Lebensdauer der Umlenktrommel bei?
Die Lebensdauer einer Umlenktrommel hängt auch von der richtigen Wartung und Instandhaltung ab. Regelmäßige Inspektionen und gegebenenfalls notwendige Reparaturen können dazu beitragen, die Lebensdauer der Umlenktrommeln zu verlängern. Falls Sie weitere Fragen haben oder eine Anfrage senden möchten, können Sie uns gerne kontaktieren. Besuchen Sie dazu einfach unseren B2B Online-Shop Tragrollen24.de oder nutzen Sie unser Online-Kontaktformular. Wir stehen Ihnen jederzeit gerne zur Verfügung.

Zu diesem Produkt empfehlen wir:

Nahaufnahme einer roten Normtragrolle Typ 15207 mit Schlüsselweite SW15 Achsende mit Schlüsselfläche: Tragrolle Typ 15207

Überblick Über

Tragrollen aller Art

zum Überblick

Oberband-Station (3-teilig) Oberband-Station (3-teilig)

ÜberBlick über

Tragrollen-Stationen

zum Überblick

Antriebstrommel Antriebstrommel

Trommeln

Antriebstrommel

zum Produkt

weitere Bezeichnungen

Ablenktrommeln, Drucktrommeln, Edelstahltrommeln, Einschnürtrommeln, Einspanntrommeln, Förderbandtrommeln, Knicktrommeln, Spanntrommeln, Stahltrommeln, Umkehrtrommeln, Umlenktrommeln, Umlenkwalzen

Telefon E-Mail nach oben

Einstellungen

Accessibility

Über folgende Optionen können Sie das Interface individuell auf Barrierefreiheit anpassen. Unsere Website orientiert sich an den Accessibility Guidelines für Barrierefreiheit, festgelegt vom W3C. Über folgende Optionen können Sie das Interface weiter auf Ihre Bedürfnisse anpassen.